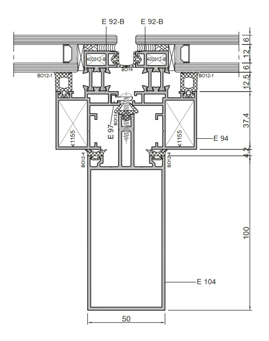
AB50-T
برند: ABESCON
نام محصول:
سیستم کرتین وال ترمال بریک کاست
مزایا:
برند: ABESCON
نام محصول:
سیستم کرتین وال ترمال بریک کاست
مزایا: